
[공모전] 합천원폭피해자 추모시설 설계공모(입상)_2025
공유의 풍경
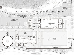
Ι 위치 : 경상남도 합천군 합천읍 영창리 443번지 외 3필지
합천은 일제강점기 징용으로 인해 혹은 생계를 위해 히로시마로 이주한 주민다수가 원폭피해자가 되어 돌아와 지내는 곳이다. 하지만 이러한 사실 즉 합천군과 원폭의 관계에 대해 여전히 많은 한국인들은 모르고 있는 실정이다. 일본제국주의의 종말과 미국이 핵무기를 사용할 수 밖 에 없었던 상황을 강조하는 담론 속에서 무고하게 죽어간 이들의 비극적 죽음을 국가와 일본, 미국 그리고 우리 스스로 묵인한 결과이다.
이렇듯 집단적 죽음을 외면한 현실 속 본 장소에 자리 잡을 추모시설은 고요와 침묵을 강요하는 공간으로 무겁게 앉아있기 보다는 주변으로 열리며 통하여 고여 있지 않는 명과 암이 서로를 잠식하지 않는 분위기속에 조금은 가볍길 바랬다.
죽은 자들은 그토록 그리워했을, 산자들에겐 지금 이순간도 발을 딛고 살아가는 일상 속 이 땅을 오롯하지만 특별한 장면으로 바라볼 수 있는 투명한 장소. 그리하여 망자와 산자가 그때도 지금도 존재하는 이 땅의 풍경을 공유하고 이를 바탕으로 서로를 인지하며 진실한 대화가 가능할 때 그들의 죽음은 비로소 삶의 곁으로 돌아올 수 있을 것이라 믿는다.
여전히 이어지고 있는 현실 속 고통과 피해를 추모하는 것도 또 그것을 투명하게 인식하고 바라보며 치유하는 것도 결국 이 땅 위에서 시작되어야 하기에 이 장소에 고안된 건축적 장치들은 자연스레 이 땅의 존중 위에서 계획되었다. 이곳을 찾는 사람과 영혼들에게 작지만 소중한 울림과 위로가 되기를 바래본다.
Project Gallery














